Avalon Park Town Home Kitchen

Concept Design

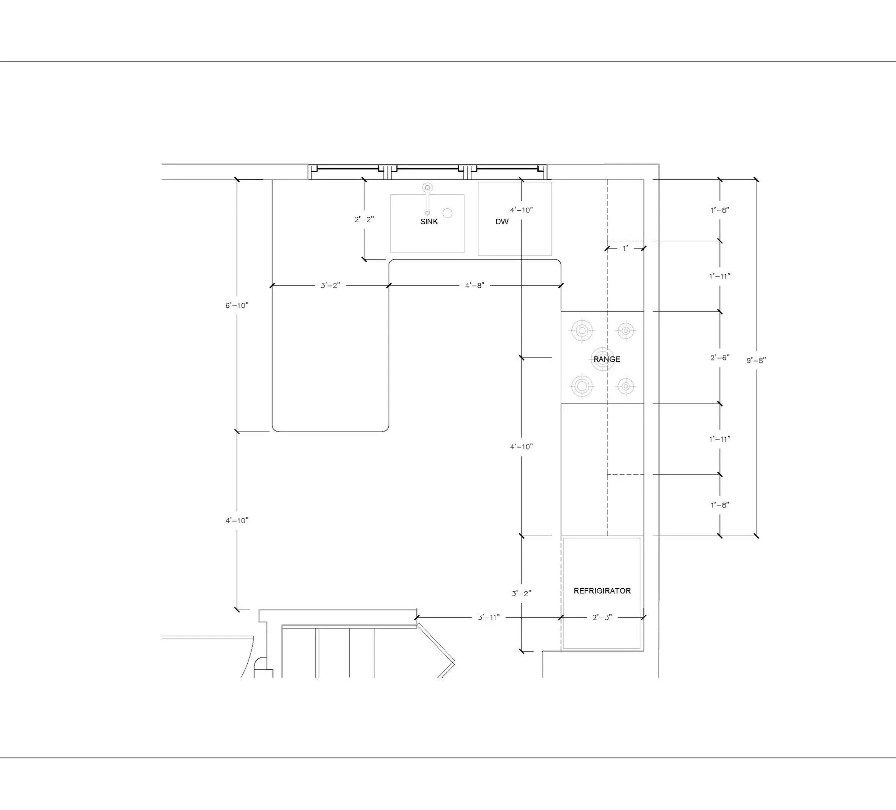
This kitchen redesign was driven by two goals: creating a more functional space and completing the home's story. The result reveals the homeowners' quiet, artistic sensibility — a muted color palette that yields to the striking Calacatta Viola marble and the arched architectural detail above the range.

Behind the scenes

Previous
Previous

Winter Park Lake House

Next
Next

Universal Music Group Headquarters